Нужен дизайн интерьера?
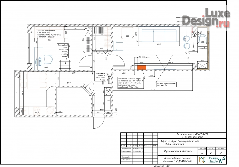
Двухкомнатная квартира в г. Луга Ленинградской обл. Интерьер в современном стиле, с нотками востока. Основная задача - спокойный отдых после трудового дня. Детская для мальчика 11 лет. Работа велась онлайн.










Стиль интерьера:
Современный стиль
Работа дизайнера:
Лотарева Наталия Дмитриевна